Livistonia IX, contemporary 3-storey shop office with an industrial flair, blending steel, glass, and exposed materials for a sleek aesthetic. The open floor plan and large windows create a versatile, well-lit space, catering to modern business needs with style and functionality.
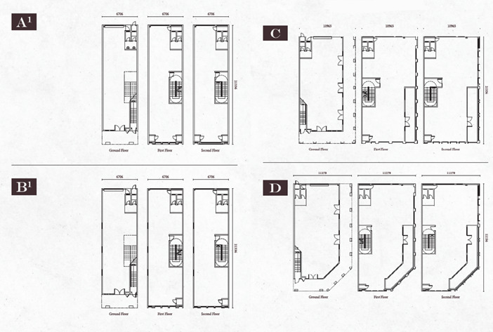
Floor Plan
Property Specification
| Structure | Reinforced concrete framework |
|---|---|
| Wall | Brickwall / Drywall and / or Precast panels |
| Roof covering | Metal roofing / Reinforced concrete roof |
| Roof Framing | Quality roof truss |
| Ceiling | Plaster ceiling board, Skim coat |
|---|---|
| Windows | Aluminium frame top hung with fixed glass window, Aluminium frame top hung with casement window, Aluminium frame top hung window, Aluminium frame fix glass panel window |
| Doors | Aluminium frame glass swing door, Fire rated door, Plywood flush door with water resistant laminate, M.S grill door, Louvre door, PVC door, Roller shutter door (only for Type A1, A2, F, B1, C, D) |
| Ironmongery | Provided |
| Toilet | 1500mm height tiles |
|---|---|
| Refuse bin | Full height wall tiles |
| Toilet | Tiles |
|---|---|
| Refuse bin | Tiles |
| Walkway | Tiles |
| Shop & office | Cement render |
| Other area | Cement render |

| FWS | Provided |
|---|
Site Plan
Location
Location
Connected to CBD and Customs, Immigration and Quarantine (CIQ) Complex via major highways and a designated route.
| Fairview International School |
| S.J.K ST. Joseph |
| SMK Kempas Johor |
| Mid Valley Southkey |
| Paradigm Mall Johor Bahru |
| Lotus's Setia Tropika |
| Aeon Dato Onn |
| Kempas Medical Centre |
| KPJ Dato Onn |
| SETIA TROPIKA TOWN PARK |
Site Progress
Site progress photos are updated every two months
-Structural work is completed.
-Architectural works are completed.
-Defect rectification is in progress.
-Authority inspections are in progress.
Setia Tropika Sales Gallery Location
Operating Hours:
Monday – Friday : 9.00am – 6.00pm
Saturday/Sunday & Public Holidays : 10.00am – 6.00pm
Address:
Tropika Welcome Centre
No. 10, Jalan Setia Tropika 1/21
Taman Setia Tropika
81200 Kempas, Johor Bahru
Johor Darul Takzim, Malaysia
Tel (Sales):
+607 266 2255
Tel (Customer Relations):
+607 266 2256
Email:
st-sales@spsetia.com



